甲醇介質流量計的工作原理與結構組成特點及應用
點擊次數:2855 發布時間:2021-01-03 08:39:29
一、工作原理
流量計工作原理如圖1所示:
流量計垂直安裝在管道上,流體自下向上流經錐管,浮子在P1、P2差壓作用下產生上升或下移,當浮子此差壓(P2-P1)與浮子重力G、浮力F、粘滯力合力平衡時,處于平衡狀態。建立方程并推導(可參考相關專業資料,此處省略),忽略粘滯力影響,假設流量系數為常數,可得出浮子位移與流量成線性對應關系。浮子流量計的流量方程為:


圖1甲醇介質流量計工作原理圖
二、溫壓補償算法
流量計在測量氣體介質時,當氣體溫度、壓力不穩定,造成被測氣體工況密度變化較大時,流量指示誤差增大,此時應進行溫度壓力補償計算,恢復儀表測量的準確性。具體推導、計算如下:
2.1工況體積流量:

三、溫壓補償技術
由溫壓補償算法推導可知,當實際被測氣體介質工作狀態發生變化時(即壓力P、溫度T偏離設計)通過采集氣體介質的壓力、溫度信號,通過公式(5)、(6)、(7)、(8)計算,即可實現溫

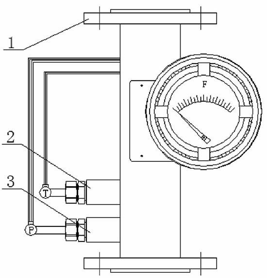
圖2分體式溫壓補償型
流量計結構示意圖
度壓力在線實時補償計算,得到準確的流量信號,此即為甲醇介質流量計溫壓補償技術。
四、溫壓補償型甲醇介質流量計結構組成、特點及應用
4.1分體式結構
流量計、溫度變送器、壓力變送器單獨安裝,流量信號、溫度信號、壓力信號分別輸入DCS或控制計算器進行流量的溫度、壓力補償計算,完成流量、壓力、溫度各參數的顯示、輸出、打印等功能。此種結構安裝靈活,特別適用于現場流量計的升級改造,如圖2所示。號、溫度信號、壓力信號輸入到溫壓補償功能設計的流量計轉換器中,進行流量的溫度、壓力補償計算,完成流量、壓力、溫度各參數的顯示、輸出、打印等功能。此種結構測量準確度高,體積小,安裝方便,如圖3所示:

圖3一體式溫壓補償型流量計結構示意圖
1、甲醇介質流量計2、溫度傳感器3、壓力傳感器甲醇介質流量計由傳感器(包括法蘭、測量管、上導向器、浮子、錐管或孔板、下導向器、連接支架、連接螺釘等)和溫壓補償型指示器及其內部零部件等構成。
流量計工作原理如圖1所示:
流量計垂直安裝在管道上,流體自下向上流經錐管,浮子在P1、P2差壓作用下產生上升或下移,當浮子此差壓(P2-P1)與浮子重力G、浮力F、粘滯力合力平衡時,處于平衡狀態。建立方程并推導(可參考相關專業資料,此處省略),忽略粘滯力影響,假設流量系數為常數,可得出浮子位移與流量成線性對應關系。浮子流量計的流量方程為:


圖1甲醇介質流量計工作原理圖
二、溫壓補償算法
流量計在測量氣體介質時,當氣體溫度、壓力不穩定,造成被測氣體工況密度變化較大時,流量指示誤差增大,此時應進行溫度壓力補償計算,恢復儀表測量的準確性。具體推導、計算如下:
2.1工況體積流量:

三、溫壓補償技術
由溫壓補償算法推導可知,當實際被測氣體介質工作狀態發生變化時(即壓力P、溫度T偏離設計)通過采集氣體介質的壓力、溫度信號,通過公式(5)、(6)、(7)、(8)計算,即可實現溫

圖2分體式溫壓補償型
流量計結構示意圖
度壓力在線實時補償計算,得到準確的流量信號,此即為甲醇介質流量計溫壓補償技術。
四、溫壓補償型甲醇介質流量計結構組成、特點及應用
4.1分體式結構
流量計、溫度變送器、壓力變送器單獨安裝,流量信號、溫度信號、壓力信號分別輸入DCS或控制計算器進行流量的溫度、壓力補償計算,完成流量、壓力、溫度各參數的顯示、輸出、打印等功能。此種結構安裝靈活,特別適用于現場流量計的升級改造,如圖2所示。號、溫度信號、壓力信號輸入到溫壓補償功能設計的流量計轉換器中,進行流量的溫度、壓力補償計算,完成流量、壓力、溫度各參數的顯示、輸出、打印等功能。此種結構測量準確度高,體積小,安裝方便,如圖3所示:

圖3一體式溫壓補償型流量計結構示意圖
1、甲醇介質流量計2、溫度傳感器3、壓力傳感器甲醇介質流量計由傳感器(包括法蘭、測量管、上導向器、浮子、錐管或孔板、下導向器、連接支架、連接螺釘等)和溫壓補償型指示器及其內部零部件等構成。


